Concept Design
At Mag Design Group we can help prepare concept designs for presentation to investors, city planners, or for cost estimating. We can develop complete project plans and costs.
Indoor Sports Facilities
 |
 |
 |
|
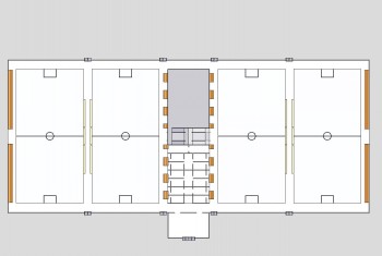
430' x 185' Fabric covered building. |
Centralized change rooms for 8 teams, offices, retail space, concessions, and upper viewing deck. |
Flexible layouts. 4 soccer pitches, or could be used for indoor tennis, football, or lacrosse. |
Indoor Golf Facility
 |
|
|
|
240' x 165' Fabric covered building. Includes offices and retail space. |
Sloped floor for automated ball retrieval. Virtual golf simulators Practice sand bunker |
Upper and lower level tee boxes | |